Private Domestic
Extend and re-model / refurbish
Woking Borough Council
4,140 sq ft (384 sq m) GIFA (including outbuildings)
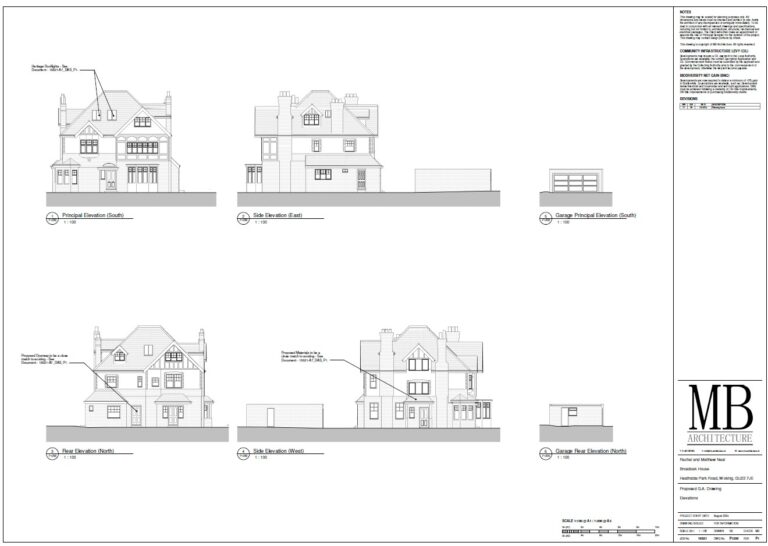
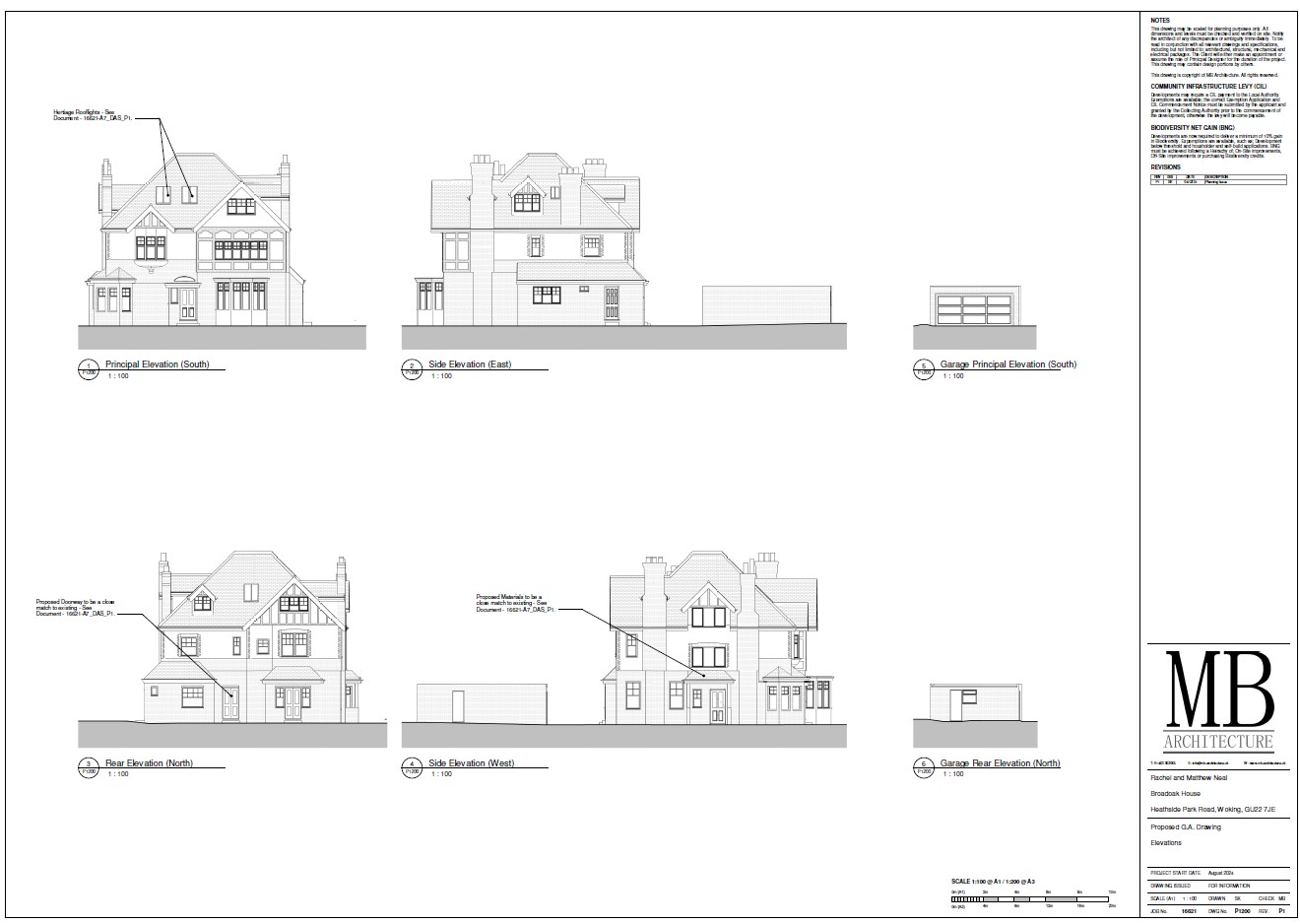
This property sits in a conservation area, and our client purchased this period property with a view to returning it back to it’s original appearance, whilst internally remodelling and extending to the rear to make it fit for a growing family.
Planning permission was required, and we set about preparing an application that would highlight the lengths the owner wanted to go to, in order to achieve an aesthetically original façade. The extension was proposed in closely matching architectural styles to the main house. The heritage windows were chosen in timber. The character detailing including brickwork and timber facade was to be repaired and re-instated where required. The internal layout was to be re-modelled to all floors.
We worked in close collaboration with our client who is in the property business, advising on all aspects of the project.
Planning permission was granted and the project is in progress.
The result will be a beautifully restored and improved character property ready for the next 100 years!
If you are considering a similar transformation, contact us now to start the conversation!


























































| Cookie | Duration | Description |
|---|---|---|
| cookielawinfo-checkbox-analytics | 11 months | This cookie is set by GDPR Cookie Consent plugin. The cookie is used to store the user consent for the cookies in the category "Analytics". |
| cookielawinfo-checkbox-functional | 11 months | The cookie is set by GDPR cookie consent to record the user consent for the cookies in the category "Functional". |
| cookielawinfo-checkbox-necessary | 11 months | This cookie is set by GDPR Cookie Consent plugin. The cookies is used to store the user consent for the cookies in the category "Necessary". |
| cookielawinfo-checkbox-others | 11 months | This cookie is set by GDPR Cookie Consent plugin. The cookie is used to store the user consent for the cookies in the category "Other. |
| cookielawinfo-checkbox-performance | 11 months | This cookie is set by GDPR Cookie Consent plugin. The cookie is used to store the user consent for the cookies in the category "Performance". |
| viewed_cookie_policy | 11 months | The cookie is set by the GDPR Cookie Consent plugin and is used to store whether or not user has consented to the use of cookies. It does not store any personal data. |